
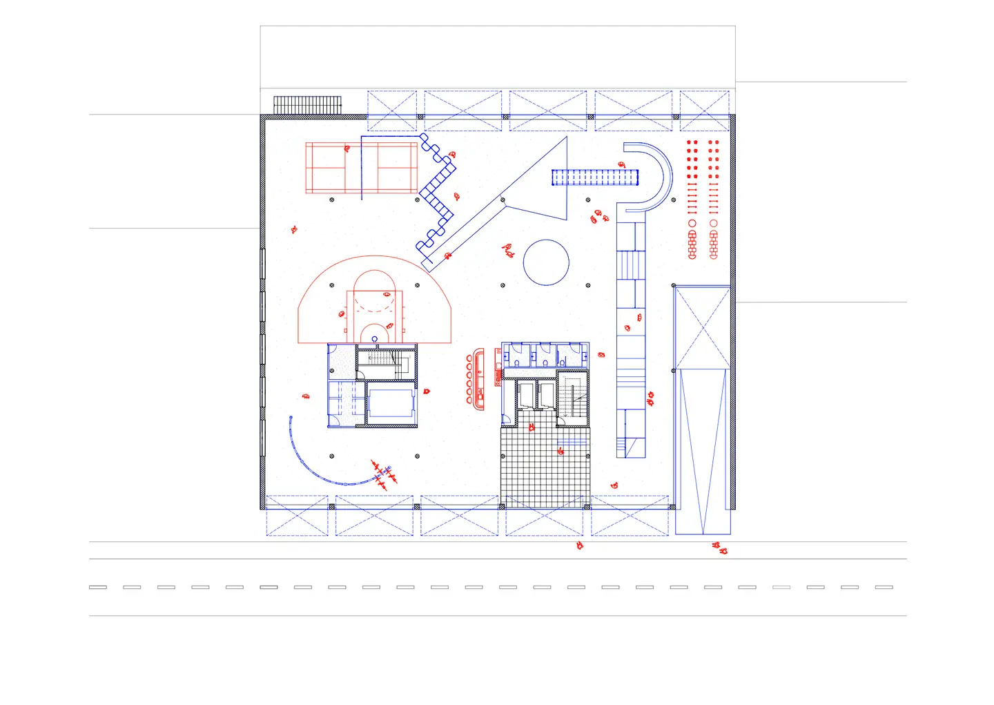
Fréquences s’inscrit dans le cadre de l’atelier Baylon, centré sur la réhabilitation d’un bâti- ment à Carouge. La grande épaisseur de l’édifice rend l’habitation peu adaptée, mais libère un vaste espace central. Ce vide, débarrassé des cloisons et aménagements secondaires, ne conserve que les éléments porteurs, poteaux en béton et dalles, qui en constituent les seules contraintes spatiales. Il devient ainsi le cœur du projet. L’objectif est d’activer cet espace par des programmes répondant aux besoins des habi- tant·x·es du quartier Grosselin. Le bâtiment est transformé en un lieu hybride, dédié à la musique et aux sports urbains. Conçu à partir d’entretiens, le projet propose un espace couvert, accessible toute l’année, pensé pour encourager l’expression, les rencontres et l’appropriation par les jeunes. Au sous-sol, un studio et une salle d’écoute organisent les flux et les ambiances autour de la production musicale. L’acoustique est soigneusement traitée. Au rez-de-chaussée, un plateau libre accueille skate, street workout et jeux de balle. Traver- sant et ouvert, il s’étend vers l’extérieur grâce à une structure au sol filaire et à des façades mobiles, créant une continuité avec l’espace public.












